Проект D-2
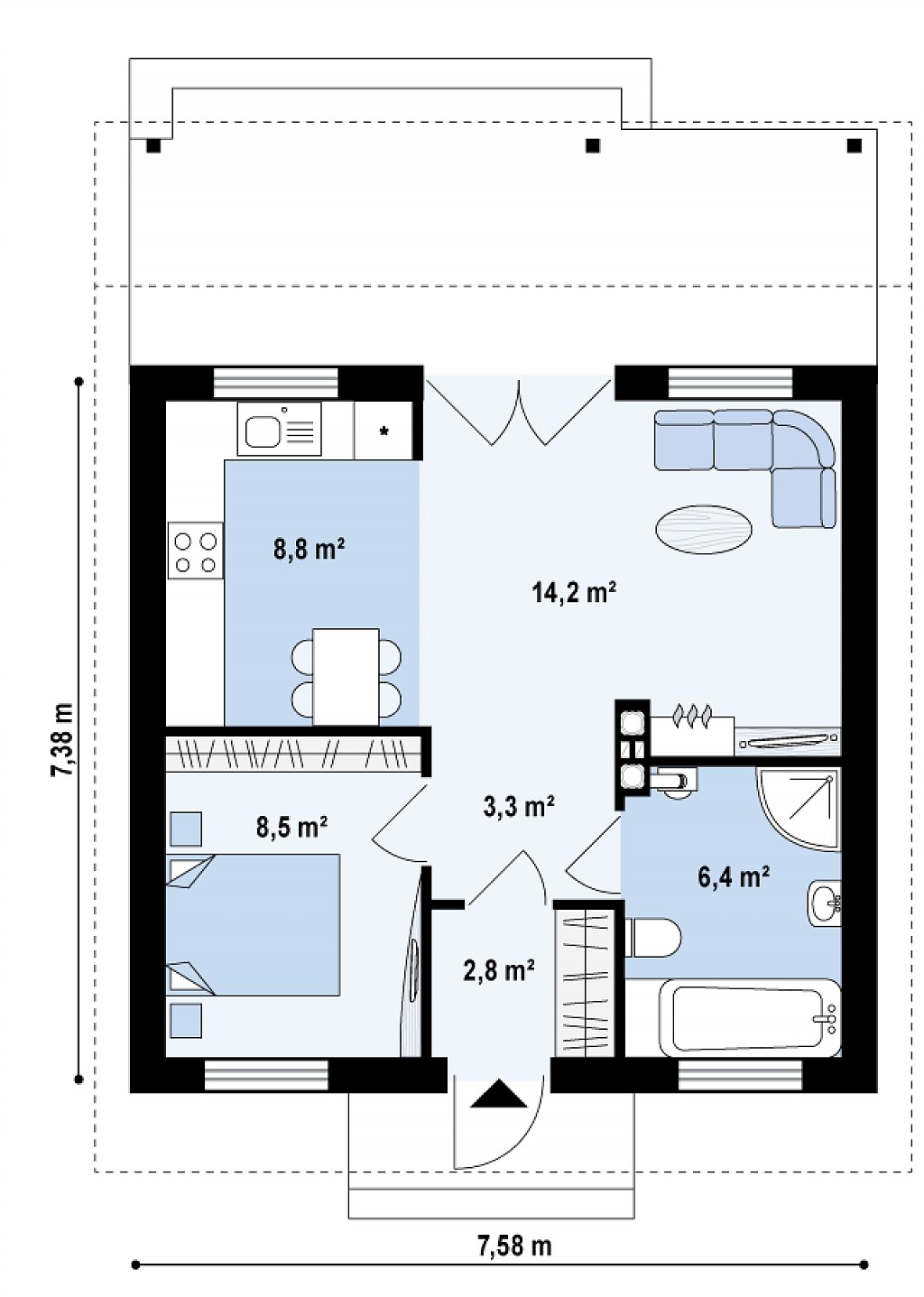
Общая площадь:44,0 кв.м.
Площадь застройки:56,0 кв.м.
Размеры:7,58 x 7,38 м.
Получить консультацию
*Перепланировка под ваши требования бесплатно
*Изменение размеров дома бесплатно
Закажите 3D-визуализацию
будущего дома!
будущего дома!
Контакты
Телефон:
Почта:
Адрес
460000, г. Оренбург, ул. Монтажников, 23