Проект 80-21
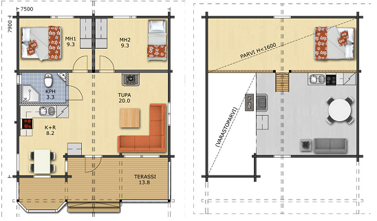
Общая площадь:68,7 кв.м.
Площадь застройки:74,25 кв.м.
Размеры:7,5 х 7,9 м.
Получить консультацию
*Перепланировка под ваши требования бесплатно
*Изменение размеров дома бесплатно
Закажите 3D-визуализацию
будущего дома!
будущего дома!
Контакты
Телефон:
Почта:
Адрес
460000, г. Оренбург, ул. Монтажников, 23